Vendgélátó egység kiváló lokációval

7631 Nyomtatás Ajánlás Facebook

Zala vármegyében, kiváló lokációban, Az M70-s autóút muraszemenyei lehajtójától mindössze néhány km távolságra, Csörnyeföld településen várja új tulajdonosát ez az igazán sokrétű vendéglátó egység. Az M7-s autópálya, valamint Horvátország, és Szlovénia közelsége számtalan lehetőséggel kecsegtet a vállalkozni vágyóknak. A több mint 8500 nm nagyságú terület tökéletesen alkalmas akár telephely kialakítására is. A terület kialakításának köszönhetően mind a téli, mind a nyári időszakban képes kamionok parkoltatására.

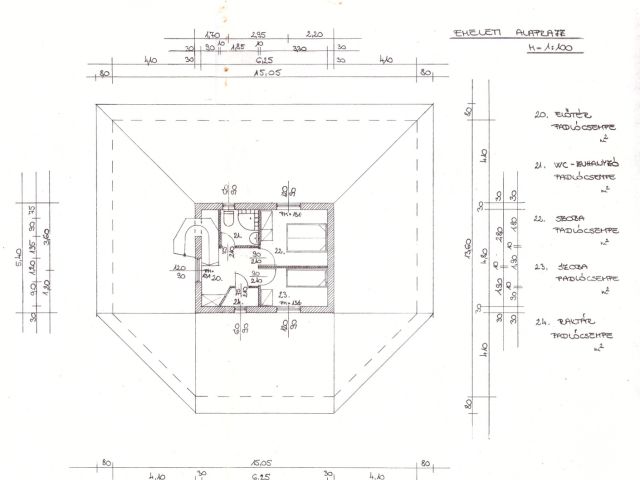
A vendéglátó egység alsó része egy igényesen kialakított étterem, mely közel 50 fő ellátására, befogadására képes. A 170 nm-s nagyságú alsó szinten a vendégtéren kívül az előírásoknak megfelelően ki van alakítva konyha, valamint az ehhez tartozó kiszolgáló helyiségek, raktárak, a vendégek és a személyzet számára pedig a megfelelő vizesblokkok is. A vendégek számára fenntartott tér közepén egy impozáns, vadkörte fából készült kiszolgálópult kapott helyet, mely valóban egyedivé és hangulatossá teszi az épület központi részét. A földszinthez közel 50 nm nagyságú terasz rész is kapcsolódik. Az emeleti részén 2 szoba és egy fürdőszoba került kialakításra. A szobák bútorzata szintén egyedi készítésű, melynek alapja gesztenyefa. Az ingatlan korszerű kamera- és riasztórendszerrel van ellátva. Az épületben minden közmű megtalálható, rendeltetésének megfelelően használható.

Akár telephelyet keres, akár vendéglátásban gondolkodik, ez az ingatlan remek lehetőségeket nyújt. Kisebb átalakításokkal akár családi ház is kialakítható belőle. Megtekintéshez minden esetben telefonos egyeztetés szükséges!

Stolcz Gábor ingatlanértékesítő (+36 30 551 8808)

Stolcz Gábor
PRÉMIUM

Stolcz Gábor

9 éve a Városi Ingatlaniroda tagja
Ingatlanértékesítő
Letenye
+36 (30) 551 8808
Észrevétel a hirdetéssel kapcsolatban
Egy ingatlanos naplója