Új építésű tetőteraszos prémium lakás eladó

2547 Nyomtatás Ajánlás Facebook

Eladó lakás a XVIII. kerületben, Bókaytelep zöldövezeti részén!

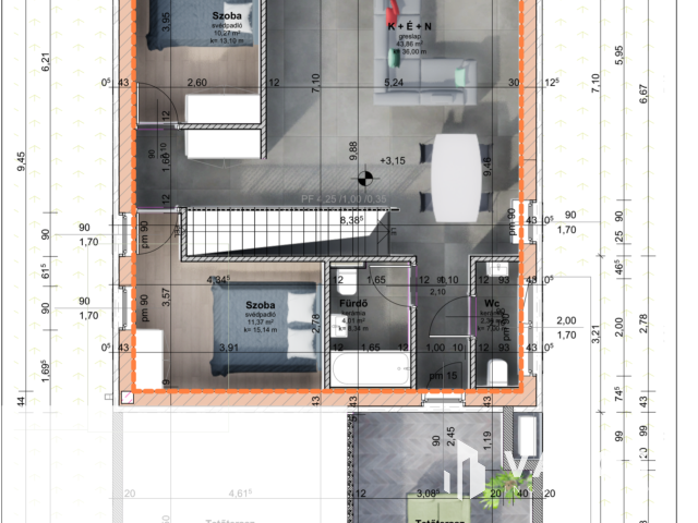
Budapest 18. kerületében, a családias és barátságos Bókaytelepen kínálunk eladásra egy kivételes adottságokkal rendelkező, téglaépítésű lakást. A 75 m²-es, kulcsrakész állapotban átadásra kerülő ingatlan az épület emeleti szintjén helyezkedik el, ami biztosítja a csendes, zavartalan környezetet.

Az ingatlan elrendezése átgondolt és praktikus: két tágas szoba, egy világos nappali, amerikai konyha, valamint külön fürdőszoba és WC szolgálja a kényelmet. Az új nyílászáróknak és külső hőszigetelésnek köszönhetően a lakás alacsony fenntartási költségekkel bír. A prémium anyagok használata minden részletben megmutatkozik.

Műszaki tartalom és felszereltség:
- Monolit vasbeton lemezalap, vízzáró rendszerrel
- Falazat hő és hangszigetelt 30 cm Leier külső falazat, Silka hanggátló elválasztó fallal
- Homlokzati hőszigetelés: 12 cm dryvit rendszer
- Földrengésbiztos födémrendszer: 25 cm vastag monolit vasbeton födém
- Tetőtér szigetelése 40 cm üveggyapot a födémen
- Tetőszerkezet: Bramac betoncserép fedéssel
- Nyílászárók: 3 rétegű üvegezésű, kívül szürke-belül fehér színű műanyag ablakok
- Bejárati ajtó : MABISZ minősítésű biztonsági ajtó
- Fűtér-hűtés: korszerű monoblokkos hőszivattyús rendszer, padlófűtéssel és fal-coil egységekkel
- Árnyékolástechnikai előkészítés: vakolható redőnyszekrények, redőny, szúnyogháló igény szerint beépíthető
- Fűtés és melegvíz ellátás: Levegő-víz hőszivattyú + központi tároló, cirkulációs rendszerrel
- Energetikai besorolás :A+
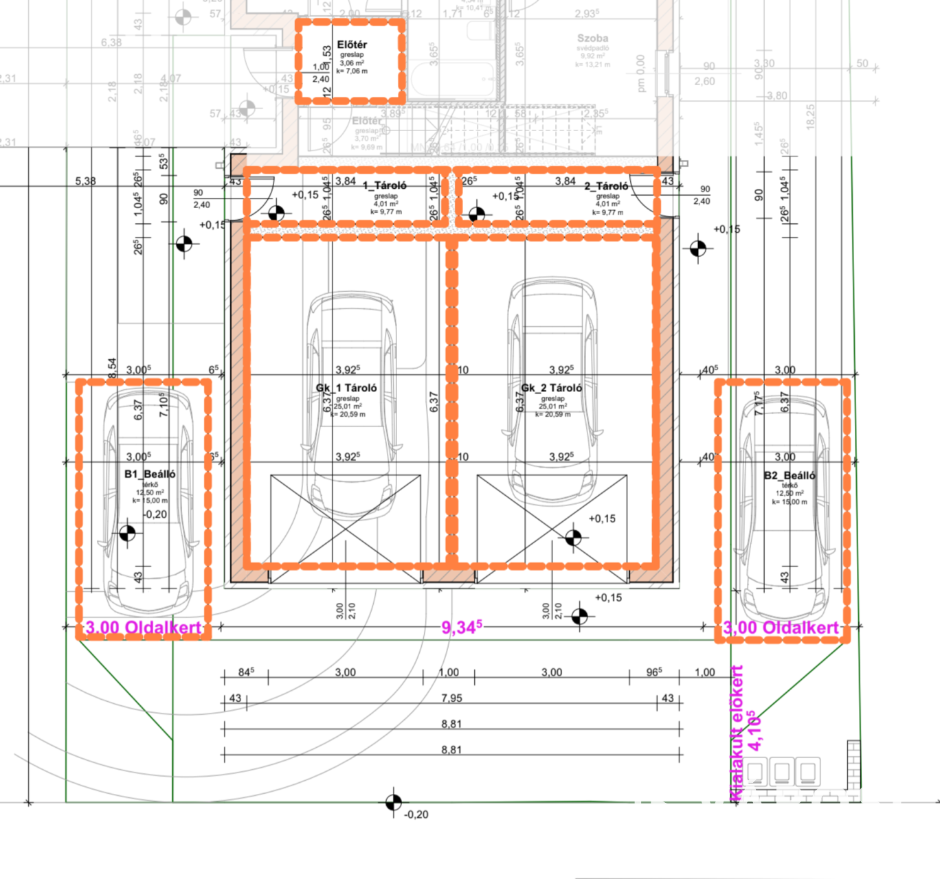
- A lakásokhoz garázs vásárolható 5,5 Mft, vagy gépkocsi beálló 1,5 Mft.
- Közös használatú parkosított kert 200 m2
Várható átadás: 2026. Il. negyedév.

A lakás kiváló infrastruktúrával rendelkezik: a belváros könnyen és gyorsan elérhető, ugyanakkor a csendes utca és a zöldövezet nyugodt életteret biztosít. A modern életvitel igényeit kielégítve optikai internetkábel is bevezetésre került, az új villamoshálózat pedig garantálja a biztonságot és a megbízhatóságot.

Ne hagyja ki ezt a kivételes lehetőséget! Legyen Ön az első, aki megtekinti ezt a különleges otthont. Ideális választás családok számára, akik nyugodt környezetben szeretnének élni, mégis közel a város pezsgő életéhez.

Érdeklődés esetén keressen bizalommal a megadott elérhetőségeken!

Meszesánné Márki Ildikó
PRÉMIUM

Meszesánné Márki Ildikó

12 éve a Városi Ingatlaniroda tagja
Ingatlanértékesítő
Gyál
+36 (20) 388 3540
Észrevétel a hirdetéssel kapcsolatban
Egy ingatlanos naplója