Új építésű tanya eladó

19330 Nyomtatás Ajánlás Facebook

Eladó egy különleges, autentikus tanya Pusztaföldvár külterületén, alig 8 km-re Orosházától. Az ingatlan két épületből áll: egy felújított, korhű vertfalú parasztházból, valamint egy kétszintes, 2019-ben épült téglafalazatú épületből, amely kifejezetten rendezvények és vendéglátás céljára lett kialakítva.
A parasztház teljes mértékben lakható, konyhával, fürdőszobával, WC-vel, egy nagy és egy kisebb szobával rendelkezik. A fűtés cserépkályhával és klímával biztosított, így egész évben komfortos. A meleg vizet villanybojler és napkollektor biztosítja.
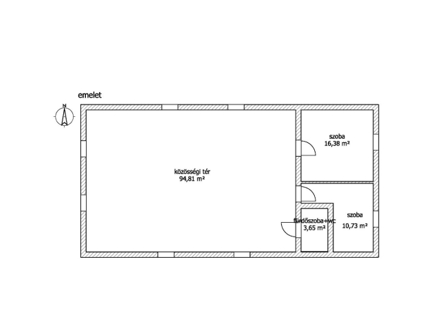
A 2019-ben épült főépület alsó szintjén rendezvénytér, konyha, mosdó és tároló kapott helyet. Az emeleten két szoba, közösségi tér és további mosdó szolgálja a vendégek kényelmét.
A tágas terasz az épület teljes hosszában végigfut, kilátással a fiatal erdőre és az udvarra.
A birtokon egy kisebb tó is található, mely ideális horgászatra, haltartásra.

Az épületek előtt több mint 10 autó részére kialakított parkoló, valamint egy fedett beálló található – rendezvényekhez tökéletes háttérinfrastruktúra. Stabil, egész évben járható megközelítés, még esős időben is!

Hasznosítási lehetőségek:
- Rendezvényhelyszín – esküvők, családi összejövetelek, csapatépítők, tematikus programok (pl. kézműves napok, falusi disznótor)
- Turisztikai szálláshely / vendégház – falusi turizmus, természetközeli pihenés, horgászturizmus.
- Kreatív műhely vagy alkotótábor – festők, fotósok, írók számára tökéletes, inspiráló környezet.
- Oktatási vagy élményalapú programok helyszíne – hagyományőrzés, tanyasi élet bemutatása is megvalósítható.
- Saját otthonként is kiváló választás, ha egy nyugodt vidéki életre vágyik! Az ingatlanhoz tartozó szántóterület és a saját tó kiváló alapot adnak akár önellátó gazdálkodáshoz, növénytermesztéshez, állattartáshoz.

Ha egy különleges helyet keres, ahol egyszerre lehet otthon és inspiráló tér, akkor ne hagyja ki ezt a lehetőséget! Hívjon bizalommal!

Koszecz Andrea
PRÉMIUM

Koszecz Andrea

5 éve a Városi Ingatlaniroda tagja
Ingatlanértékesítő
Békéscsaba
+36 (70) 310 4451
Észrevétel a hirdetéssel kapcsolatban
Egy ingatlanos naplója