Új építésű ikerház gyönyörű környezetben

1376 Nyomtatás Ajánlás Facebook

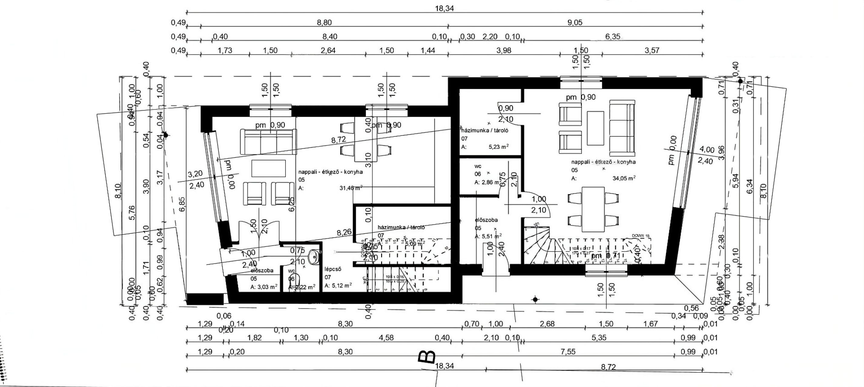
Siófok Sóstó városrészén, csendes utcában, 200 méterre a Balatontól kínálok eladásra egy kivételes ikerházat, amely minden igényt kielégít. Az ingatlan 92 m² lakótérrel rendelkezik, és egy 249 m²-es telken helyezkedik el. Ideális választás azok számára, akik szeretnének a Balaton közelében, de nyugodt környezetben élni.

Főbb jellemzők:

- Élettér: Az épület két szintes. Az alsó szinten egy tágas közvetlen kertkapcsolatos amerikai konyhás nappali található, amely tökéletes helyszín a családi összejövetelekre. Ezen felül a földszinten található az előszoba, egy tároló és egy wc. Az emeleten található három hálószoba, egy fürdőszoba, és egy erkély.

- Modern technológia: Hőszivattyús padlófűtés, klíma és prémium hőszigetelés biztosítja az alacsony rezsit és a 21. századi komfortot.

- Várható átadás: 2026. év vége – kulcsrakész állapotban.

Az ingatlan könnyen megközelíthető, jó közlekedési kapcsolatokkal rendelkezik, így ideális választás annak aki nyugodt környezetben szeretne lenni, de mégsem szeretné a városi élet kényelmét elengedni.

Miért érdemes most döntenie? Mivel az építkezés jelenleg az alapozási szakaszban tart, Ön még aktív részese lehet a belső kialakításnak. Ne kössön kompromisszumot mások választásával, álmodja meg saját otthona hangulatát!

Érdeklődés esetén keressen bizalommal a hét minden napján! Hívjon még ma!

Vastag Ákos
PRÉMIUM

Vastag Ákos

2 éve a Városi Ingatlaniroda tagja
Ingatlanértékesítő
Siófok
+36 (30) 311 2069
Észrevétel a hirdetéssel kapcsolatban
Egy ingatlanos naplója