Tágas családi otthon hatalmas telekkel Mezőkövesden

46 Nyomtatás Ajánlás Facebook

Tágas családi otthon hatalmas telekkel Mezőkövesden – alakítsa saját igényeire!

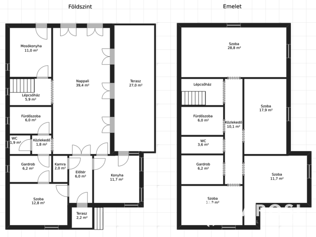
Mezőkövesd nyugodt, jól megközelíthető részén kínálunk megvételre egy kétszintes, 190 m²-es családi házat, amely egy 2174 m²-es, tágas telken helyezkedik el, és kiváló lehetőséget kínál egy igazán személyre szabott otthon kialakítására.

Az ingatlan jelenlegi állapotában lakható, de körülbelül 80%-os készültségi szinten van, ami ideális azok számára, akik nem teljes felújítással szeretnének kezdeni, ugyanakkor fontos számukra, hogy a befejezést már saját ízlésük szerint valósíthassák meg. A ház elrendezése rendkívül praktikus: 5 hálószoba és egy tágas nappali biztosít kényelmes életteret akár nagyobb család számára is.

A földszinten egy fürdőszoba WC-vel, valamint egy különálló WC is helyet kapott, míg az emeleten a fürdőszoba és a külön WC kialakítása már elkezdődött, de befejezésre vár — így az új tulajdonos saját elképzelései szerint alakíthatja ki.
A modern műszaki megoldások már adottak: új nyílászárók, külső hőszigetelés, padlófűtés és radiátor kombinálva, háromfázisú áram és optikai internet biztosítják a korszerű, gazdaságos működést. A beépített szekrények és a gardrób praktikus tárolási lehetőségeket kínálnak a mindennapokhoz.

A telek igazi különlegesség: a kertben egy nagy fóliasátor és veteményes található, amely akár egy család teljes ellátására is alkalmas, sőt, kisebb gazdálkodásra vagy értékesítésre is lehetőséget ad. Emellett már elkészült egy duplabeállós garázs és melléképület alapja, így a további fejlesztés is könnyen folytatható.

A házhoz tartozó terasz kellemes kikapcsolódást nyújt, míg a csendes környezet és a jó közlekedés garantálja a kényelmes mindennapokat egy biztonságos környezetben.

Ez az ingatlan tökéletes választás azoknak, akik egy tágas, modern alapokra épülő otthont keresnek, és szeretnék a végső kialakítást saját elképzeléseik szerint befejezni.

Ne hagyja ki ezt a lehetőséget, keressen még ma, nehogy más csapjon le rá!

Spacious Family Home with a Huge Plot in Mezőkövesd – Finish It to Suit Your Needs!

In a quiet, easily accessible part of Mezőkövesd, we offer for sale a two-storey, 190 m² family house set on a generous 2,174 m² plot—an excellent opportunity to create a truly personalised home.

The property is currently habitable, but it is at approximately 80% completion, making it ideal for buyers who don’t want to start with a full renovation, yet want to complete the finishing touches according to their own taste. The layout is highly practical: 5 bedrooms and a spacious living room provide comfortable living space even for a larger family.

On the ground floor there is a bathroom with a toilet, as well as a separate toilet. Upstairs, the bathroom and separate toilet have already been started but are still awaiting completion—so the new owner can finish them based on their own plans.

Modern technical features are already in place: new windows and doors, external insulation, underfloor heating combined with radiators, three-phase electricity, and optical internet ensure up-to-date and economical operation. Built-in wardrobes and a walk-in closet provide practical storage for everyday life.

The plot is a real highlight: the garden includes a large polytunnel/greenhouse and a vegetable garden, which could supply an entire family and even offers the potential for small-scale farming or selling produce. In addition, the foundations for a double garage and an outbuilding have already been completed, making further development easy to continue.

The house’s terrace offers a pleasant place to relax, while the quiet surroundings and good transport links guarantee comfortable everyday living in a safe environment.

This property is a perfect choice for those looking for a spacious home with modern fundamentals—and who would like to complete the final details according to their own vision.

Don’t miss this opportunity—contact us today before someone else snaps it up!

Fekete Mátyás

Fekete Mátyás

1 éve a Városi Ingatlaniroda tagja
Ingatlanértékesítő
Parád
+36 (30) 474 0685
Észrevétel a hirdetéssel kapcsolatban
Egy ingatlanos naplója