Tágas családi ház Csúcsban

1602 Nyomtatás Ajánlás Facebook

Hódmezővásárhely Csúcs városrészében eladó egy 3 lakrészből álló vegyes falazatú, ipari árammal ellátott családi ház. Lakás beszámítása lehetséges 25 M Ft-ig, meghatározott feltételek mellett.
A telek 815 m2, a ház hasznos alapterülete 196 m2, melyből 188 m2 a fűtött rész. Tartozik hozzá még egy kamra és padlásfeljáró, mely az udvarról közelíthető meg. Kocsibeállónak pedig a száraz kapu beállót is lehet használni, mely alkalmas motorkerékpár, vagy bicikli tárolására is.
Az ingatlan 3 lakrészből áll, melyből az első nagyobbik és a második kisebb garzon egybe nyitható (jelenleg le van választva). A harmadik legújabb lakrész különálló, az udvarra nyílik a bejárata (lásd alaprajz). Az épület folytatásában egy 20 m2-es nyitott műhely is található, mely tárolónak, vagy kocsibeállónak is kiválóan alkalmas. Az udvar tágas és rendezett.

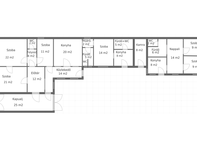
Részletek:
I. Utcai lakrész: 113 m2, fűtése gáz konvektor + 3 db csempekályha
-Szoba 21 m2 Szoba 22 m2
Előtér 12 m2
-Folyosó 4 m2
-WC 2 m2
-Szoba 11 m2
-Közlekedő 14 m2
-Konyha 20 m2
-Átjáró 2 m2
-fürdőszoba WC-vel 5 m2

II. Lakrész: 27 m2, fűtése gáz konvektor + klíma
-Szoba 14 m2
-Konyha 8 m2
-Fürdőszoba WC-vel 5 m2

III. Lakrész: 48 m2, fűtése központi fűtés
-Szoba 9 m2
-Szoba 9 m2
-Nappali 14 m2
-Konyha 8 m2
-Fürdőszoba WC-vel 8 m2
-Új villamos hálózat
A közelben buszmegálló, óvoda, iskola, boltok, de az elkerülő út is pár percre található.

Az ingatlan irányára: 60 M Ft.
Külső képekért és időpont egyeztetésért hívjon akár hétvégén is!

Tisztelettel: Gonda Ildikó
Ingatlanértékesítő Városi Ingatlaniroda
Telefon : nulla hat hetven hatszáztizenkettő negyvenegy negyvenkettő
e-mail : gonda.ildiko@varos.hu

Irodánk készséggel áll ügyfeleink rendelkezésére nem csak ingatlanügyekben, de hitelügyintézésben is : 3 %-os fix kamatozású Otthon Start hitel, CSOK Plusz hitel, Falusi CSOK, egyéb jelzáloghitelek, babaváró kölcsön, szabad felhasználású hitelek, személyi kölcsön, jogi ügyekben /ügyvéd/ és energetikai tanúsítvány készítésében is /energetikus/.

Gonda Ildikó

Gonda Ildikó

2 éve a Városi Ingatlaniroda tagja
Ingatlanértékesítő
Hódmezővásárhely
+36 (70) 612 4142
Észrevétel a hirdetéssel kapcsolatban
Egy ingatlanos naplója