Színes és praktikus Otthon, ami inspirál!

5752 Nyomtatás Ajánlás Facebook

Újszegeden a csendes Marostői városrészben eladó egy 10 lakásos társasház harmadik emeletén egy belső kétszintes, tágas otthon, amely tökéletes választás lehet családosoknak is.
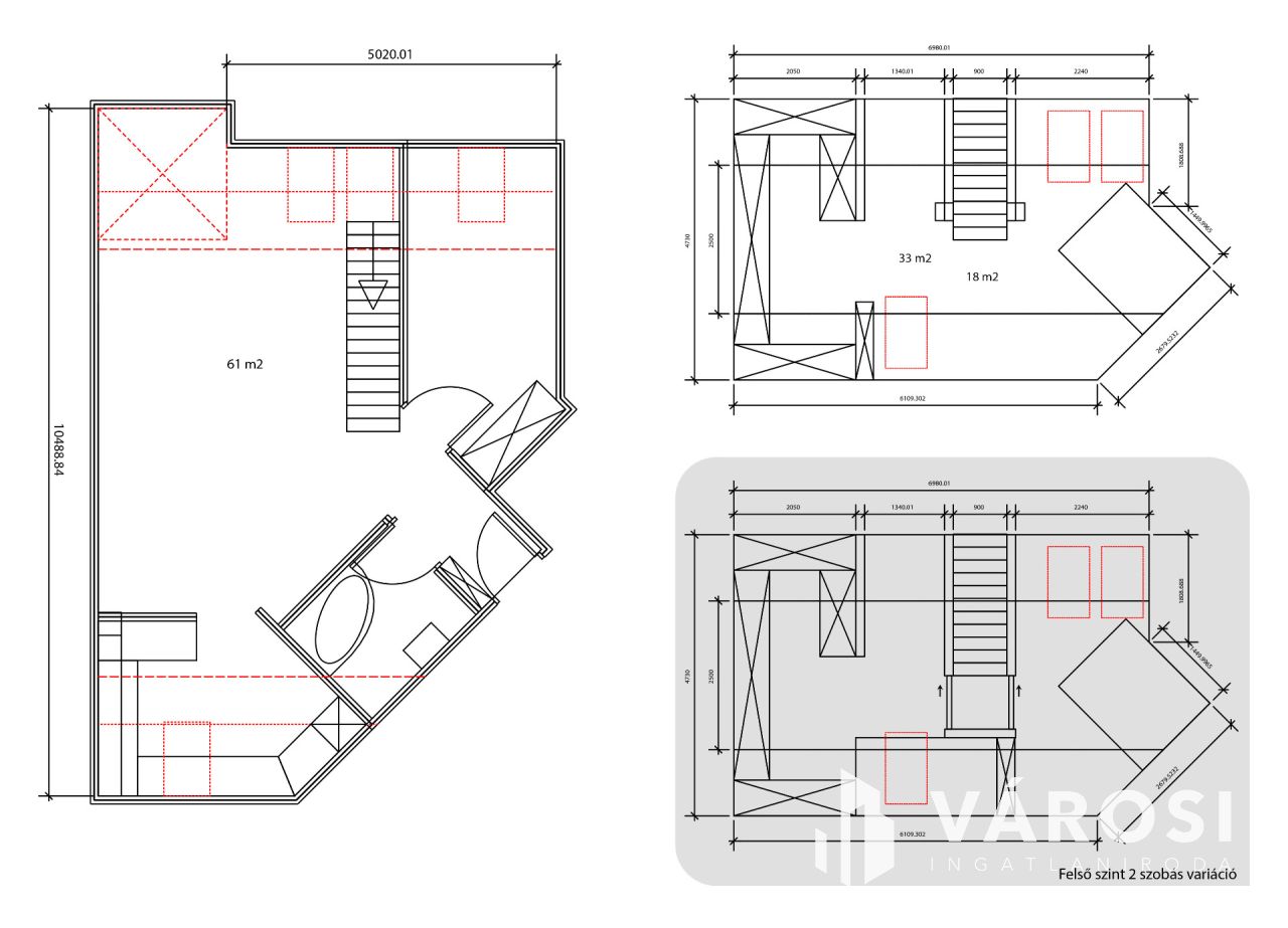
Teljes lakótér bruttó 94 nm/nettó 70 nm.
A lakásba lépve egy praktikus előszobába érkezünk, ahol egy hatalmas cipőtároló gondoskodik, hogy mindig rendezett legyen a tér. Balra található a fürdőszoba és WC, amely kényelmes sarokkáddal van felszerelve, tökéletes egy hosszú nap utáni kikapcsolódáshoz. Jobbra egy hálószoba nyílik, ahol rengeteg tárolóhely segít rendben tartani a mindennapi dolgokat.
Továbbhaladva az előszobából belépünk a tágas és világos amerikai konyhás nappaliba, amely a lakás szíve. Itt bőven van hely a közös családi étkezésekhez, beszélgetésekhez vagy egy pihentető estére a kanapén.
A nappaliból egy kényelmes lépcső vezet fel az emeletre, ahol egy egybenyitott, sokoldalúan alakítható tér található. Jelenleg egy hálórész, dolgozósarok és gardrób kapott itt helyet, de könnyedén két különálló szobává alakítható - tökéletes gyerekszobának vagy akár egy extra hálónak.
Ez a lakás családosoknak is ideális, hiszen tágas, praktikus elrendezésű, rengeteg tárolási lehetőséggel és egy nyugodt, biztonságos környéken található.
A parkolás az utcán ingyenes, buszmegálló 1 percre (71, 71A, 72. 72A).

A lakás irányára: 69 900 000 Ft

Azonnal költözhető!
Igény esetén saját hitelügyintéző, ügyvéd és energetikus áll rendelkezésre.
Ha személyesen szeretné megtekinteni az ingatlant kérem hívjon.

Elérhetőségeim:
Nagyapáti Ágota
0630/374-4747
nagyapati.agota@varos.hu

Nagyapáti Ágota
PRÉMIUM

Nagyapáti Ágota

5 éve a Városi Ingatlaniroda tagja
Ingatlanértékesítő
Szeged
+36 (30) 374 4747
Észrevétel a hirdetéssel kapcsolatban
Egy ingatlanos naplója