Két generációs négyszintes családi ház Jaminában

10624 Nyomtatás Ajánlás Facebook

A Városi Ingatlaniroda eladásra kínál Békés Vármegyében, Békéscsabán Erzsébet helyen (Jamina) 2000 m2 -es telken, egy 2 szintes 4 szobás 164 m2-es tégla falazatú családi házat, mely tökéletes otthont nyújt családjának.

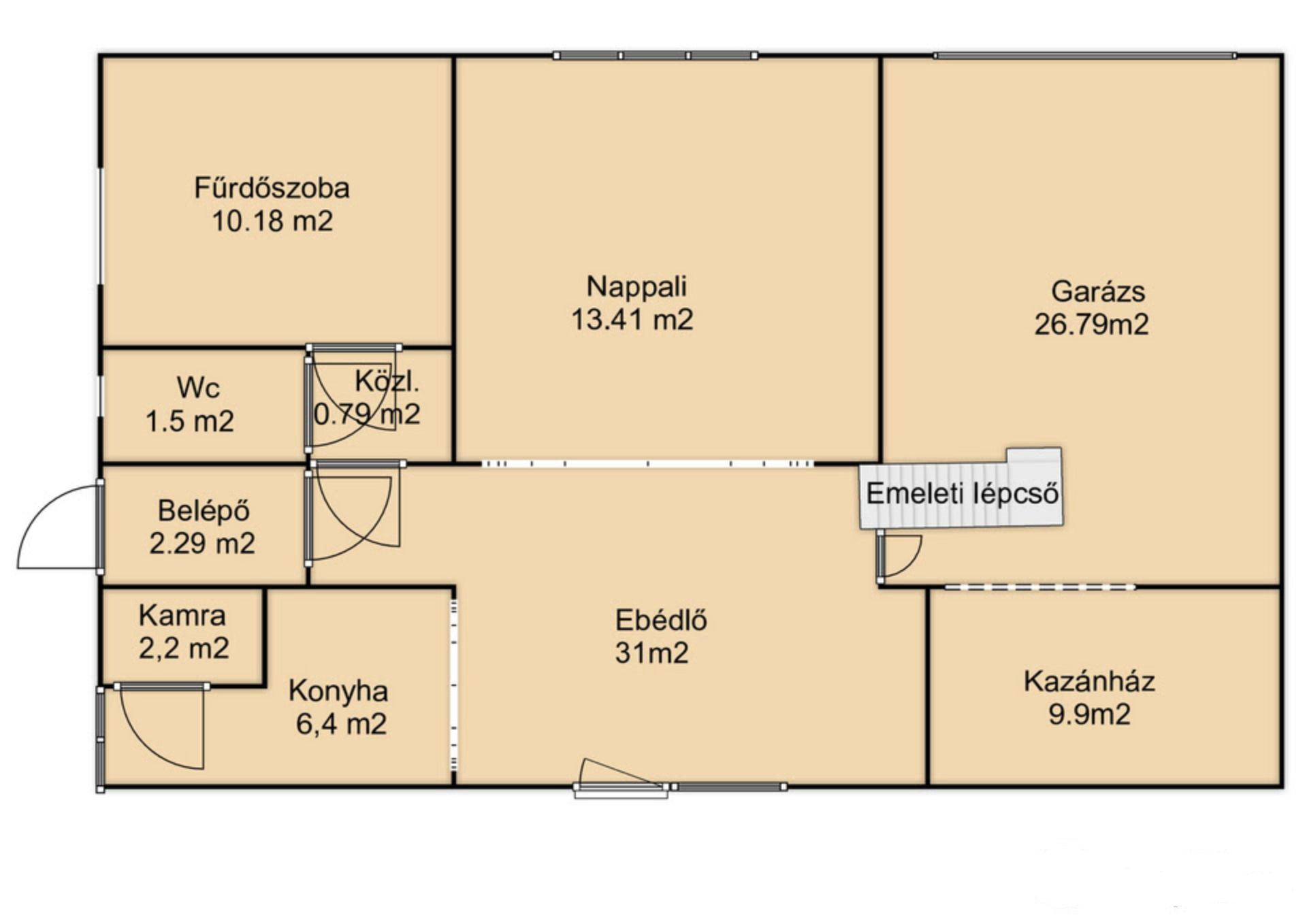
A Ház napfényes és remek elosztású, melyben 4 szoba, 1 nappali, 1 ebédlő és 2 fürdőszoba található. A központi helyen fekvő ingatlan kiváló közlekedéssel rendelkezik, karnyújtásnyira buszmegálló kisboltok stb.

Szerkezetileg jó állapotú ingatlan csak esztétikai felújítást igényel. Egy része fa egy része műanyag nyílászárók kétrétegű üvegezéssel ellátottak melyek jó hőszigetelő képességűek. Az otthon melegéről gázkazán és vegyes tüzelésű kazán gondoskodik. A nagy melegben se kell kétségbeesni mivel az emeleti szobában klíma lett felszerelve így a pihenés is kellemesebb. A meleg víz előállítását villany bojler biztosítja.

Az ingatlanhoz tartozik egy közel 27 m2-es mélygarázs ami a főépületből megközelíthető. Az elektromos kapu csak tovább növeli a haza érkezők kényelmét. A telek fásítva van ami biztosítja az egész napos árnyékot.

Amennyiben ez a jó állapotú, tehermentes családi ház felkeltette érdeklődését hívjon bizalommal a 06/70 384-66-53-as telefonszámon a hét bármely napján.

Molnár János
PRÉMIUM

Molnár János

2 éve a Városi Ingatlaniroda tagja
Ingatlanértékesítő
Békéscsaba
+36 (70) 384 6653
Észrevétel a hirdetéssel kapcsolatban
Egy ingatlanos naplója