Kemerovón 3. emeleti, erkélyes lakás kiadó!

19 Nyomtatás Ajánlás Facebook

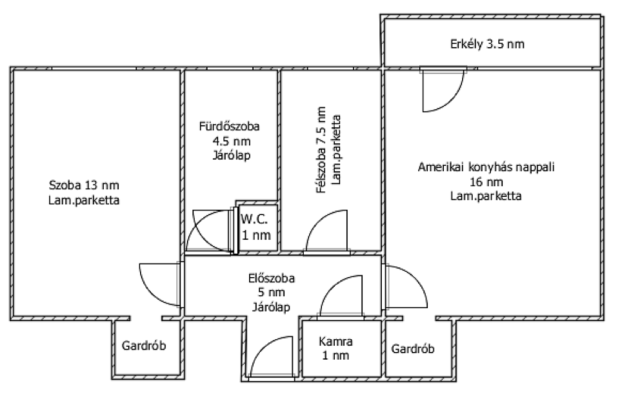
Salgótarján (Kemerovó lakótelep), 50 nm-es, felújított, berendezett, gépesített, klimatizált, 3. emeleti lakás kiadó!

A lakásban amerikai konyhás nappali, 2 hálószoba, fürdőszoba, kamra, előszoba, erkély található.

A fűtést gázkonvektorok, a meleg víz ellátást átfolyós gázos vízmelegítő biztosítja.

A bérleti szerződés határozott időre, minimum 1 évre létesíthető. A szerződéskötés feltétele 2 havi kaució+tárgyhavi bérleti díj megfizetése.

A lakásba maximum 2 felnőtt személy költözhet, kisállat NEM hozható, a dohányzás NEM megengedett.

Tatár Tamás
PRÉMIUM

Tatár Tamás

8 éve a Városi Ingatlaniroda tagja
Régióigazgató
Salgótarján
+36 (70) 439 8123
Észrevétel a hirdetéssel kapcsolatban
Egy ingatlanos naplója