Hangulatos házikó zöld övezetben

682 Nyomtatás Ajánlás Facebook

Eladó ház Szigetszentmiklóson

Főbb jellemzők:
- Telek méret: 492m2
- Hasznos lakótér: 57 m2
- Garázs: 23 m2
- Építve: 80-as évek
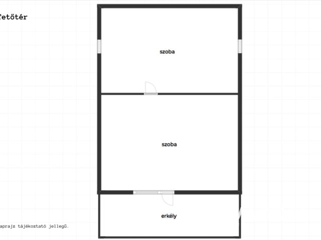
- Elosztás: Földszint: Nappali, konyha, fürdő+wc Tetőtér: 2db szoba
- Falazat: Tégla, 16cm szigeteléssel
- Hőszigetelt műanyag nyílászárók redőnnyel
- Fűtésrendszer: Gáz -konvektor
- A melegvízről egy vadonat új villanybojler gondoskodik
- Praktikus elosztás, élhető terek
- Erkély
- Fúrt kút
- A ház mögött de még a telken belül egy dombos, kisebb ligetes -erdős rész található.

Parkolás:
- Kerítsen belül 4 autónak van hely

Elhelyezkedés:
- Szigetszentmiklós csendes, kulturált, zöldövezeti részén

Közelben található:
- Iskola, óvoda, bölcsőde, gyógyszertár, sportpálya, játszótér, boltok-üzletek

Közlekedés:
- Busz -HÉV -buszmegálló a közelben
- M0 körgyűrű, M5 autópálya 15 perc alatt elérhetőek

Ha kérdése merülne fel vagy szeretné megtekinteni az ingatlant, forduljon hozzám bizalommal!

Pálvölgyi Miklós

Pálvölgyi Miklós

Ingatlanértékesítő
Szigethalom
+36 (70) 426 3163
Észrevétel a hirdetéssel kapcsolatban
Egy ingatlanos naplója