Gyálon eladó új építésű 4 hálós ikerfél csendes utcában

2337 Nyomtatás Ajánlás Facebook

Eladó 4 szobás új építésű ikerház Gyál csendes, zöldövezeti részén!

Ez a kivételes ingatlan 122 m² lakótérrel és és 201 m2-es saját kerttel várja új tulajdonosát a város egyik kedvelt, nyugodt utcájában. A ház belső szintes kialakítása maximálisan kihasználja a teret, kulcsrakész állapotának köszönhetően pedig az átadást követően 2025. decemberében költözhető.

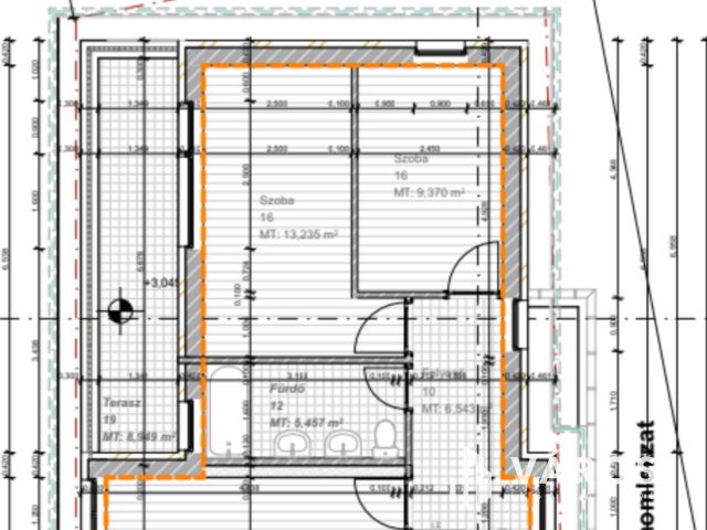
A ház négy kényelmes szobával, egy tágas nappalival, valamint két modern fürdőszobával rendelkezik. Az amerikai konyha prémium anyagokból készült, így ideális helyszínt nyújt a családi étkezéseknek és baráti összejöveteleknek. A nappaliból közvetlen kertkapcsolat nyílik a parkosított udvarra.
Az emeleti szobához panorámás erkély 9 m2 is tartozik.

Műszaki tartalom és felszereltség:
- Monolit vasbeton lemezalap, vízzáró rendszerrel
- Falazat hő és hangszigetelt 30 cm Leier külső falazat, Silka hanggátló elválasztó fallal
- Homlokzati hőszigetelés: 12 cm dryvit rendszer
- Földrengésbiztos födémrendszer: 25 cm vastag monolit vasbeton födém, az emelet feletti zárófödém is monolit vasbeton szerkezettel készül.
- Tetőtér szigetelése 20 cm üveggyapot a födémen
- Tetőszerkezet: Bramac betoncserép fedéssel, bádogozás korrózió mentes színezett alumínium lemez,
- Nyílászárók: 3 rétegű üvegezésű, kívül aranytölgy-belül fehér színű műanyag ablakok
- belső ajtók CPL fóliás felülettel, utólagosan szerelhető tokkal, katalógusból választható színben és ajtólappal, belső párkányok műanyag, külső párkányok alumíniumból készülnek.
- Bejárati ajtó : MABISZ minősítésű biztonsági ajtó
- Fűtés-hűtés: korszerű monoblokkos hőszivattyús rendszer, padlófűtéssel és fal-coil egységekkel
- Árnyékolástechnikai előkészítés: vakolható redőnyszekrények, hőszigetelt alumínium redőny, színe megegyezik az ablakok külső színével, szúnyoghálóval
- Válaszfalak: 10 cm Porotherm/ Leier ,Silka hanggátló tégla elválasztó falak
- Választható burkolatok , belső ajtók, szaniterek a műszaki tájékoztató szerint
- A lakásban a festés színe fehér.
- Az épület bejáratánál kaputelefon kerül felszerelésre, amely a beszélgetésen kívül az elektromos ajtózár működtetést is biztosítja a lakásból.
- A használati melegvíz ellátása a levegő-víz hőszivattúval fűtött közvetett tárolóval..
- A hőszivattyú a lakások fűtéséről gazdaságosan gondoskodik a padló fűtésnek köszönhetően. A fürdőkben elektromos törölközőszárító radiátor kerül elhelyezésre.
- A fűtéshez/ hűtéshez kiegészítő oldalfali fan cool is kapcsolódik a hálókban és a nappaliban.
Igény esetén felár ellenében helyiségenkénti vezérlés és okos otthon rendszer alakítható ki.
- A riasztó előkészítése minden lakáshoz biztosított.
- Lakásonként önálló villanyóra
- LED világítás , redőnymotor előkészítés
- Elektromos garázskapu,
-Optikai internetkábel előkészítés
- Saját parkosított kert használati megosztással,
- 6 cm vastag térkő burkolat, kocsibeállóval

Az ingatlanhoz garázs lehetőség is tartozik, amely kényelmes parkolást biztosít. Ne hagyja ki ezt a remek lehetőséget, hogy egy igazán különleges otthon tulajdonosa lehessen Gyál csendes ,rendezett környékén!

Keressen bizalommal a további részletekért és a megtekintés időpontjának egyeztetéséért!

Meszesánné Márki Ildikó
PRÉMIUM

Meszesánné Márki Ildikó

12 éve a Városi Ingatlaniroda tagja
Ingatlanértékesítő
Gyál
+36 (20) 388 3540
Észrevétel a hirdetéssel kapcsolatban
Egy ingatlanos naplója