Ez az ingatlan foglalózva van

Földszinti társasházi lakás

1373 Nyomtatás Ajánlás Facebook

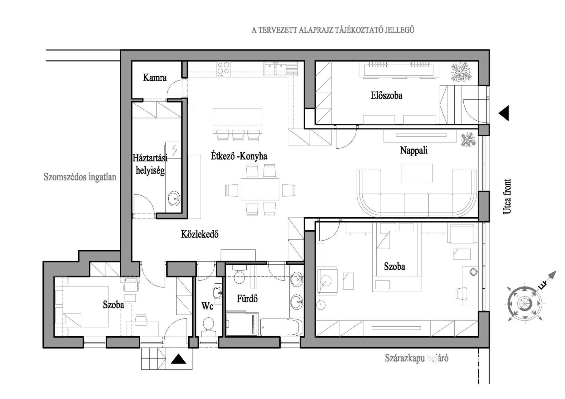
A belváros közelében, négy lakásos társasház utcafronti 107 m2 alapterületű ingatlanját kínáljunk eladásra. A téglaépítésű ingatlan legutóbb vendéglátó helyiségként működött. A tulajdoni lapon lakásként szerepel, és egy kis belső átalakítással tágas, nappali+ két szobás otthon alakítható ki. (lásd.:alaprajzok)
A 2024-es felújítás során az ingatlan jelentős korszerűsítésen esett át. A nyílászárók cseréje megtörtént, a villamoshálózat, kapcsolók, lámpák és aljzatok megújultak, valamint a teljes tetőszerkezet is új építésű, a padlástér járható. Hűtő-fűtő klíma előkészítés, és gázkazános radiátoros fűtés lehetősége kiépítve.
A társasház közös udvarán két különálló kisebb külső tároló áll rendelkezésre. Az ingatlan kiváló elhelyezkedésének és jó közlekedési adottságainak köszönhetően könnyen megközelíthető, szegedi bejáráshoz Buszpályaudvar, Tram-Train megálló 10 perc alatt elérhető gyalog.
Szegedi lakás csere, értékegyeztetéssel lehet megoldás!
Ügyfeleink számára irodánk teljes jogi hátteret, adás-vétellel kapcsolatos térítésmentes jogi tanácsadást biztosít. Bank semleges ügyintézéssel, díjmentes hitelszűréssel és tanácsadással is segítjük Önöket.

Sárai-Kovács Ágnes
PRÉMIUM

Sárai-Kovács Ágnes

5 éve a Városi Ingatlaniroda tagja
Ingatlanértékesítő
Hódmezővásárhely
+36 (30) 742 5020
Észrevétel a hirdetéssel kapcsolatban
Egy ingatlanos naplója