Épülő ikerház EBESEN

1244 Nyomtatás Ajánlás Facebook

Ebesen, rendezett családi házas környezetben eladó 2 db most épülő ikerház, csendes, magánúton megközelíthető zsákutcában. Az ingatlanok A+ energetikai besorolásúak, modern műszaki tartalommal, prémium kivitelezésben készülnek – ideális választás családoknak és befektetőknek egyaránt.

Főbb paraméterek
• Kétszintes ikerházak
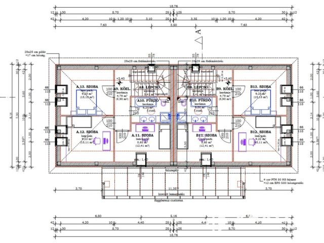
• Bruttó alapterület: 104,68 m²
• Hasznos alapterület: 87,97 m²
• + 16 m² garázs, távirányítós kapuval
• 3 hálószoba + nappali
• 13 m² terasz
• Világos, tágas terek, jól berendezhető helyiségek
• Vezérléssel zárható, közvetlen kapcsolattal rendelkező garázs

Műszaki tartalom – minőség minden részletben
• Porotherm 30 N+F főfalak, Porotherm 10 N+F válaszfalak
• Levegő–víz hőszivattyús fűtési rendszer
• Padlófűtés 5 zónás termosztátvezérléssel
• 3 rétegű üvegezésű műanyag nyílászárók
• 12 cm Austrotherm homlokzati hőszigetelés
• Lakásonként 1 db 3,5 kW klímaberendezés
• Hörmann szekcionált garázskapu, távirányítós
• Bramac Római Novo barna tetőcserép
• Bézs színű nemesvakolat
• Földszinti ablakok kétszínű kivitelben (belül fehér, kívül sötétbarna) – könnyen illeszthető az egyedi belső designhoz

Átadás: 2026. ősz. Az ingatlanok megfelelnek a támogatott hitel feltételeinek.

Miért válaszd Ebest lakhelyül?
Ideális lakókörnyezet: Ebes Debrecen közvetlen közelében található, nyugodt, biztonságos, családbarát környezetben.
A mindennapi élethez szükséges intézmények néhány percen belül elérhetőek:
• óvoda, bölcsőde, iskola
• üzletek, posta, gyógyszertár
• templom, vállalkozói ház és egyéb szolgáltatások
Kiváló elhelyezkedésének köszönhetően Debrecen és Hajdúszoboszló is gyorsan megközelíthető, így a csendes otthoni környezet és a városi infrastruktúra tökéletes egyensúlyban van.
Az ár alkuképes.
Jöjjön, nézze meg és tegyen ajánlatot!

Gorzsás Zsuzsanna

Gorzsás Zsuzsanna

2 éve a Városi Ingatlaniroda tagja
Ingatlanértékesítő
Debrecen
+36 (70) 708 1730
Észrevétel a hirdetéssel kapcsolatban
Egy ingatlanos naplója