Debrecen egyik legkedveltebb kertvárosi részén ELADÓ IKERHÁZ

62 Nyomtatás Ajánlás Facebook

Eladó ikerház Debrecen Fészek lakópark városrészben!

Amikor jó megérkezni a város zajától mentes vidékies környezetbe...ez az érzés biztosan garantált!
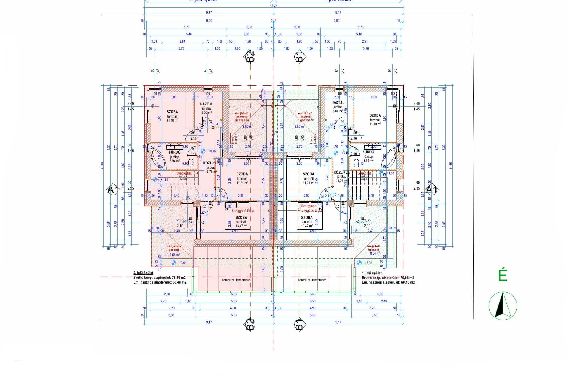
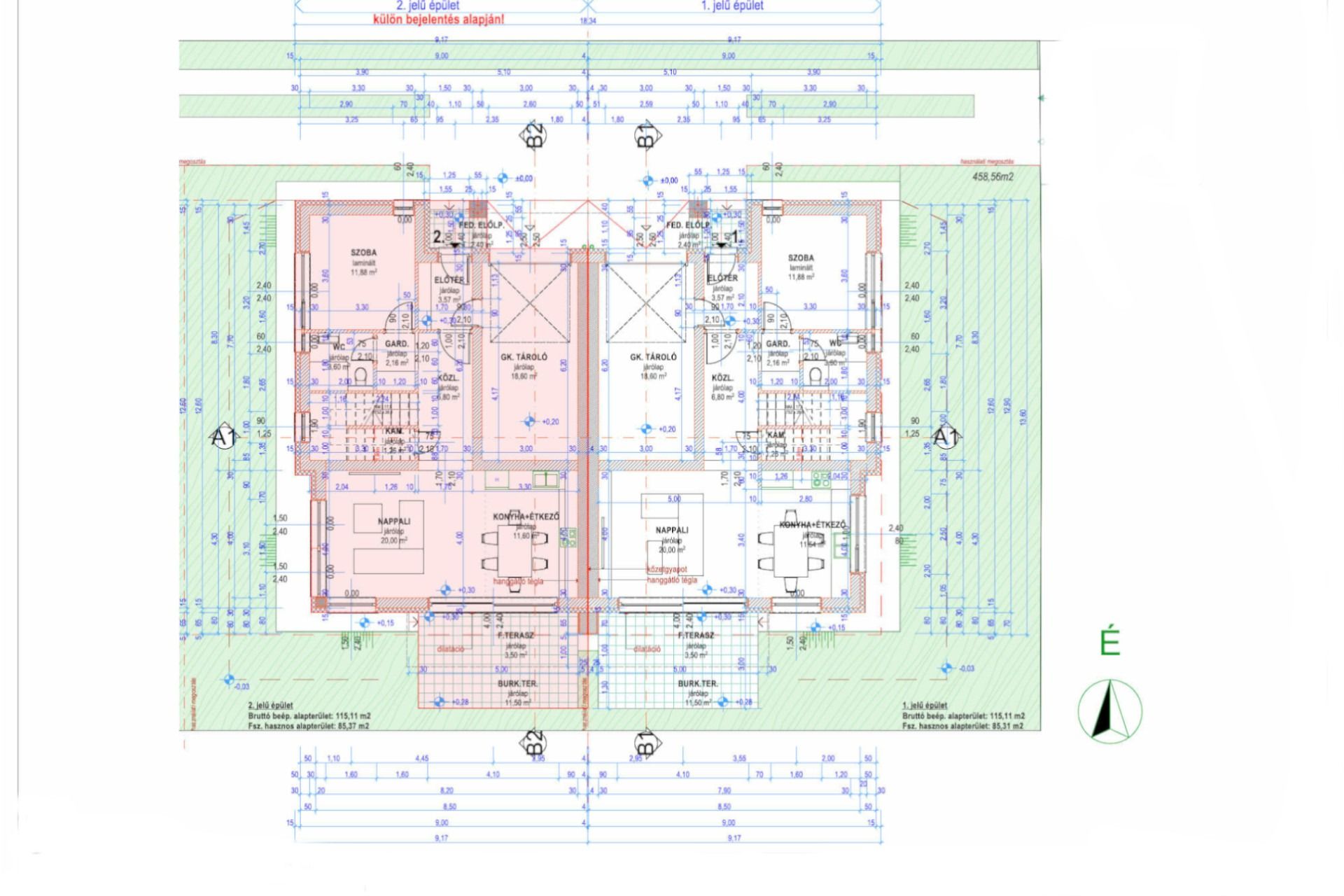
Kivételes lehetőség Debrecen egyik legkeresettebb városrészében, a Fészek lakóparkban! Megbízható, referenciákkal rendelkező kivitelezőtől, 1 db új építésű 145 m2-es korszerű ikerház, amely egy 4 lakásos ikerház részét képezik.
Az ingatlan egy csendes utcában található, ahol a nyugalom és a jó közlekedés kéz a kézben járnak.

Az átadás várható időpontja: 2027. tavasz

Főbb jellemzők:
- Lakótér:144.8 m²
- Telekméret: 218 m² (kert:103 m2)
- Szobák száma: 3 hálószoba
- Nappali: 1 tágas, világos nappali
- Fürdőszoba: 1 különálló fürdő és WC
- Konyha: Modern, amerikai stílusú konyha, amely ideális a családi és baráti összejövetelekhez

Műszaki tartalom:
-Tégla építésű, vasbeton szerkezet
-12 cm homlokzati hőszigetelés
-Egyedi kondenzációs gázkazán
-Teljes padlófűtés a maximális komfortért
-hűtő-fűtő klíma
-Korszerű, alacsony fenntartási költség


Az ingatlan alacsony fenntartású, kiváló hőszigeteléssel rendelkezik, és padlófűtés gondoskodik a hideg hónapokban a komfortos melegről. A nappaliban elhelyezett klíma nyáron is kellemes hőmérsékletet biztosít. Az optikai internet kábelnek köszönhetően a gyors és stabil internetkapcsolat garantált.

Az elegáns redőnyözött ablakokon át csodás kilátás nyílik a parkosított udvarra és az otthonhoz tartozó teraszra, mely tökéletes helyszín lehet a pihenésre vagy a vendégek fogadására. Az elektromos garázskapu kényelmes megoldást nyújt az autó tárolására.

💬Extrák:
- Gardrób az ideális tárolásért
- Csendes utca, mégis közel a városi élet nyüzsgéséhez
- Kiváló közlekedési lehetőségek

Ez az ingatlan minden igényt kielégít, legyen szó kényelmes családi otthonról vagy befektetési lehetőségről.

📞 Ne maradjon le róla, keressen bizalommal további információért!
Az ingatlan megtekinthető előzetes időpont egyeztetéssel.
Nemes Gabriella +36-70-406-6880

Semi-detached house for sale in Debrecen Fészek residential park!

When it's nice to arrive in a rural environment free from the noise of the city...this feeling is definitely guaranteed!
Exceptional opportunity in one of the most sought-after parts of Debrecen, in the Fészek residential park! From a reliable contractor with references, 1 newly built 145 m2 modern semi-detached house, which is part of a 4-apartment semi-detached house.
The property is located in a quiet street, where tranquility and good transportation go hand in hand.

Expected handover date: Spring 2027

Main features:
- Living space: 144.8 m²
- Plot size: 218 m² (garden: 103 m2)
- Number of rooms: 3 bedrooms
- Living room: 1 spacious, bright living room
- Bathroom: 1 separate bathroom and toilet
- Kitchen: Modern, American-style kitchen, ideal for family and friends gatherings

Technical content:
-Brick-built, reinforced concrete structure
-12 cm facade insulation
-Unique condensing gas boiler
-Full underfloor heating for maximum comfort
-cooling-heating air conditioning
-Modern, low maintenance costs

The property is low-maintenance, has excellent thermal insulation, and underfloor heating ensures comfortable warmth in the cold months. The air conditioning in the living room also provides a pleasant temperature in the summer. Thanks to the optical internet cable, a fast and stable internet connection is guaranteed.

The elegant shuttered windows offer a wonderful view of the landscaped yard and the terrace belonging to the home, which can be a perfect place to relax or receive guests. The electric garage door provides a convenient solution for storing the car.

💬Extras:
- Wardrobe for ideal storage
- Quiet street, yet close to the hustle and bustle of city life
- Excellent transportation options

This property meets all your needs, whether it is a comfortable family home or an investment opportunity.

📞 Don't miss out, contact us for more information!
The property can be viewed by prior appointment.
Gabriella Nemes +36-70-406-6880

Nemes Gabriella

Nemes Gabriella

Ingatlanértékesítő
Debrecen
+36 (70) 406 6880
Észrevétel a hirdetéssel kapcsolatban
Egy ingatlanos naplója