Családi ház eladó Sümeg belvárosában

4921 Nyomtatás Ajánlás Facebook

Felújítandó, jó elosztású családi ház eladó Sümeg belvárosában!

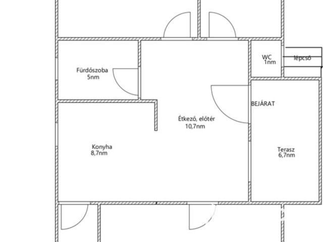
A ház tágas, jól alakítható terekkel rendelkezik: nagy terasz, világos étkező–előszoba, konyha, fürdő, nappali és két hálószoba. A tetőtér beépíthető, így az ingatlan tovább bővíthető.

Közművek: villany, víz, csatorna, gáz bevezetve (gázóra leszerelve). A nyílászárók hő- és hangszigeteltek, zsalugáterrel ellátva. A ház szerkezete masszív: beton alap, B30-as tégla falazat, betongerendás födém, pala tető. Három működő kémény is rendelkezésre áll.

Az udvar teljesen zárt, hátul garázs vagy grillezőhely alakítható ki. Utcafronti elhelyezkedése miatt akár vállalkozásra is kiváló.

Jöjjön el, nézze meg, és álmodja meg új otthonát vagy vállalkozását ebben a sok lehetőséget rejtő ingatlanban!

Sibak András

Sibak András

Ingatlanértékesítő
Tapolca
+36 (70) 533 0069
Észrevétel a hirdetéssel kapcsolatban
Egy ingatlanos naplója