Budapest XIII., Kiadó raktárhelyiség

414 Nyomtatás Ajánlás Facebook

Kiadó Raktár Budapest 13. kerület Angyalföld városrészben!

Remek lehetőség kiváló lokációban, remek áron újszerű raktárhelyiség bérlésére!
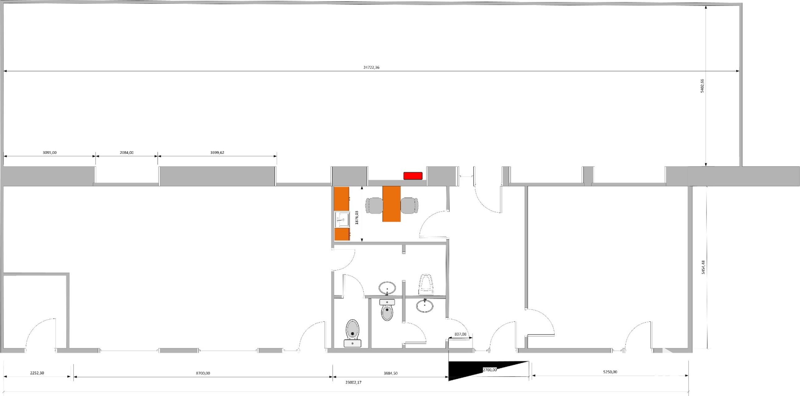
Budapest közkedvelt részén, Angyalföldön kínálunk kiadásra egy kiváló állapotú, modern raktárhelyiséget. Az ingatlan összesen 268 m² alapterülettel rendelkezik, amely tágas teret biztosít különböző tárolási és logisztikai igények kielégítésére.

Főbb jellemzők:
- Elhelyezkedés: Budapest 13. kerület, Angyalföld
- Alapterület: 268 m²
- Földszinti elhelyezkedés
- Újszerű, fiatal épület, kiváló állapotban

Az ingatlan két bejárattal rendelkezik, a bejáratok a belső udvarból nyílnak. Az ingatlanban a 2 iroda/eladótér mellett EUR raklapok elhelyezésére alkalmas galériázott raktárhelyiség található polcrendszerrel, továbbá női, férfi mosdó és teakonyha is rendelkezésre áll. Az irodának és kiszolgáló helyiségnek is alkalmas helyiségek világosak, tágasak. Az ingatlan kiválóan alkalmas nagykereskedelmi tevékenység vagy web áruházas értékesítés lebonyolítására, szerviz szolgáltatás működtetésére. / Az előző bérlő egy számítástechnikai nagykereskedés volt./ Korszerű vizesblokk, teakonyha és egy további kisebb tároló szolgálja a bérlők kényelmét. Hűtésről légkondicionálók gondoskodnak, a fűtés központi. Az anyagmozgatáshoz szükséges elektromos kézi targoncát a bérleti díj tartalmazza. A rakodás belső udvarban, kényelmesen megoldható.
Minimum bérleti idő 12 hónap. /1 év határozott idejű bérlet esetén 2%, 2 év határozott idejű bérlet esetén 4% kedvezmény a bérleti díjból!
A nettó bérleti díj összetevői:
- Eladótér, 28 m2: 103.000 Ft/hó
- Raktár és kiszolgáló helyiségek, 240 m2: 562.700Ft
- Az irodaház üzemelési költsége: 1.400Ft/m2 (268 m2): 375.000Ft
(A bérleti díj 390Ft/Euro árfolyamon számolva.)
További költség az áramfogyasztás díja, mely egyedi mérő alapján fizetendő.
Az irodaház 24 órás portaszolgálattal rendelkezik, parkolóhelyei 70 EUR/hó vagy 1.500,- Ft/nap összegért bérelhetőek szabad kapacitás függvényében.
A raktárhelyiség könnyen megközelíthető mind gépjárművel, mind tömegközlekedéssel, és jól illeszkedik a környék dinamikus üzleti környezetébe.

Az ingatlan ideális választás lehet vállalkozások számára, akik számára fontos a központi elhelyezkedés és a korszerű infrastruktúra. A tulajdonos nagyon korrekt, ügyfélbarát szemléletű, a kialakítás módosítása, válaszfalak "mozgatása" egyeztetés alapján kivitelezhető.
Az ingatlan azonnal költözhető, hosszú távú bérlők jelentkezését várjuk. Ne hagyja ki ezt a remek lehetőséget, vegye fel velünk a kapcsolatot a további részletekért és személyes megtekintésért!

Kovács Tibor Gyula

Kovács Tibor Gyula

Ingatlanértékesítő
Budapest
+36 (30) 587 9489
Észrevétel a hirdetéssel kapcsolatban
Egy ingatlanos naplója