3 szobás dupla erkélyes 2020-ban épült lakás autóbeállóval

160 Nyomtatás Ajánlás Facebook

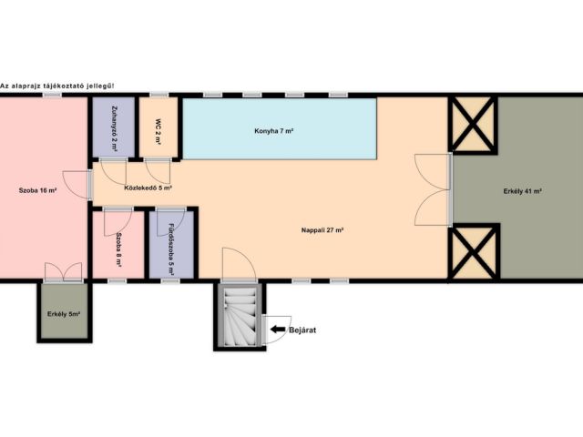
Zugló -Alsórákos- csendes, nyugodt részén, 5 lakásos társasházban kínálunk eladásra egy nettó 75 m²-es, 3 szobás, amerikai
konyhás-nappalis lakást, amely saját autóbeállóval rendelkezik, és Otthon Start hitellel is megvásárolható.

A lakás különlegessége, hogy tartozik hozzá egy kisebb 5 m²-es és egy nagyobb 26 m² alapterületű terasz.
Tájolásának köszönhetően körbenapozott, világos, jó hangulatú.

Az ingatlan a mai igényeknek megfelelő műszaki tartalommal rendelkezik. Klímával felszerelt, korszerű nyílászárókkal és energiatakarékos megoldásokkal.

A lakás ára a gépesített konyhát is tartalmazza (mikró, sütő, elektromos főzőlap, páraelszívó).

A társasház egy 600 m²-es telken helyezkedik el, ahol összesen 5 db gépkocsi-beálló került kialakításra, melyeket elektromos kapun keresztül lehet megközelíteni. Gépkocsibeálló vásárolható, ára 5.000.000Ft.

A lakás a képen látható állapotban azonnal birtokba vehető, rövid időn belül költözhető.

Nettó 75 m²
-amerikai konyhás nappali + 2 szoba
-dupla erkélyes
-teljesen újszerű állapotú
-2db klímával felszerelve
-saját autóbeálló lehetőség
-közös költség nincs
-azonnal költözhető
-Otthon Start hitellel is megvásárolható

Ez a lakás ideális választás fiatal pároknak, családoknak, vagy akár befektetési célra is.

Gergics Róbert
PRÉMIUM

Gergics Róbert

Karrierigazgató
Budapest
+36 (20) 262 6304
Észrevétel a hirdetéssel kapcsolatban
Egy ingatlanos naplója