2 zártkerti ingatlan egyben

12255 Nyomtatás Ajánlás Facebook

Ha egy nem elég, azonnal két zártkertet ajánlok Önnek!

Zala vármegyében, a horvát határvidéken, Molnári településhez tartozó Sándor-hegyen keresi új tulajdonosát 2 egymás mellett található, de egy helyrajzi számon szereplő zártkerti ingatlan. A 2 ingatlan csak egyben eladó! A zártkertek megközelítése végig aszfaltos úton történik. A környék végtelenül csendes, a kilátás, valamint a természet közelsége kifogásolhatatlan. Az ingatlan kifüggesztést igényel, de adásvétel után szinte azonnal birtokba vehető.

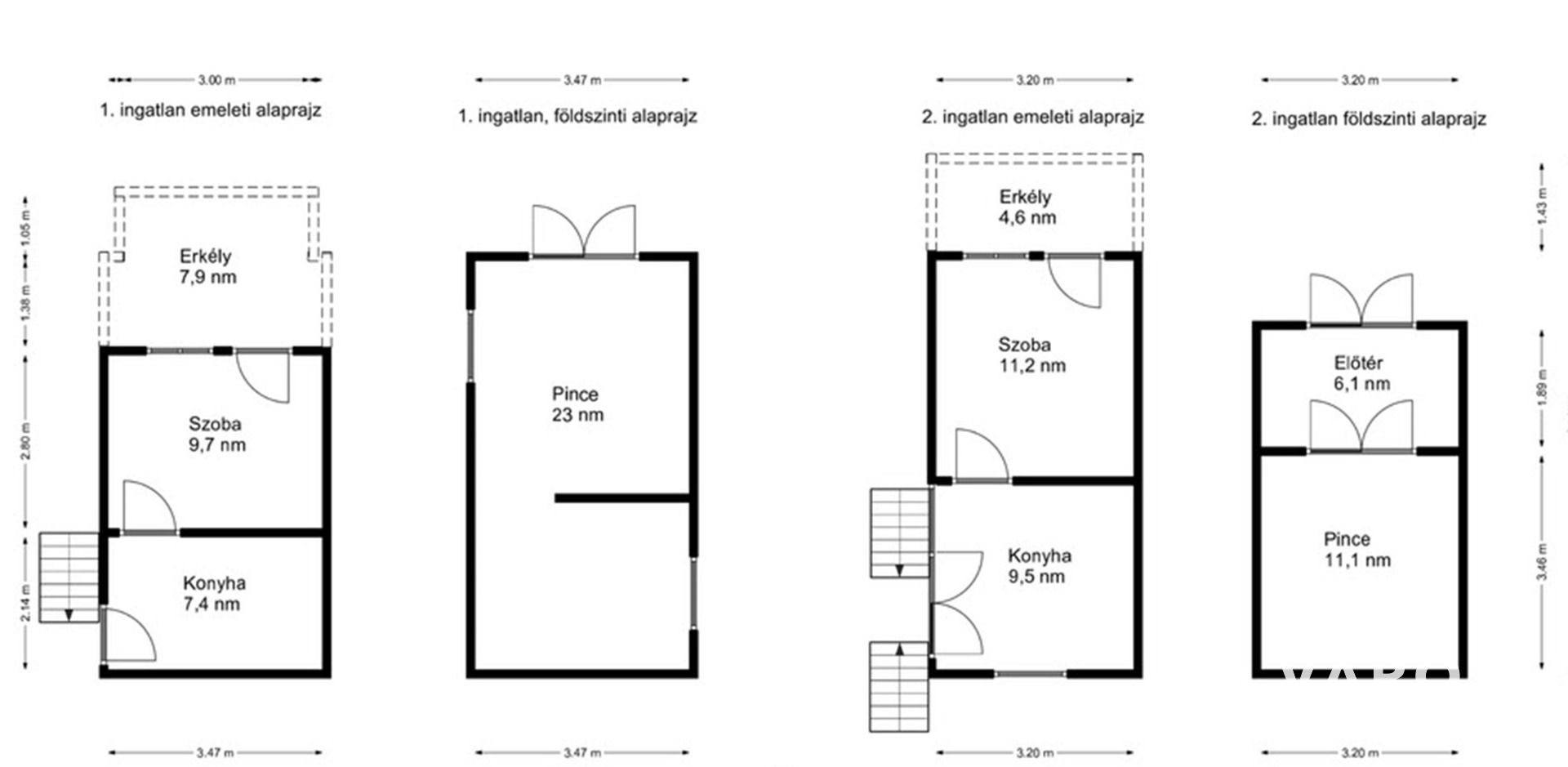
A közel 3000 nm nagyságú terület sík, szépen karbantartott, a terület hátsó részén egy kisebb akácerdő is található. Közművek közül a víz a területre be van kötve, az áram 10 méteren belülről köthető. E két közmű jelenlétével hétvégi háznak, nyaralónak, de akár turisztikai célra is kialakíthatóak az épületek. MIndkét épület egy szobából, egy konyhából, valamint egy pinceszintből áll, az ingatlanok hasznos alapterülete darabonként megközelítőleg 20 nm.

Érdemes személyesen is megtekinteni, és felfedezni az épületekben rejlő lehetőségeket! Az ingatlanok megtekintéséhez minden esetben telefonos egyeztetés szükséges!

Stolcz Gábor prémium ingatlan értékesítő (+36 30 551 8808)

Stolcz Gábor
PRÉMIUM

Stolcz Gábor

9 éve a Városi Ingatlaniroda tagja
Ingatlanértékesítő
Letenye
+36 (30) 551 8808
Észrevétel a hirdetéssel kapcsolatban
Egy ingatlanos naplója